Real Estate & Estate Auction – 5/28
Details
Directions: In Morris, OK, Take Hwy 52 S 1.7 mi. Auction on Left. -OR- From the Jnct of Hwy 52 & Hwy 266, Take Hwy 266 N approx. 5.4 mi.
Auctioneer’s Note: Lots of Antiques and Collectibles still to be UNBOXED. Follow us on Facebook for updates.
AUCTION STARTS @ 9:31 AM
REAL ESTATE will SELL @ 10:01 AM
LIVE ONSITE & ONLINE BIDDING on Lots 2 – 80 START @ 11:01 AM
50 ACRES OFFERED IN 3 TRACTS

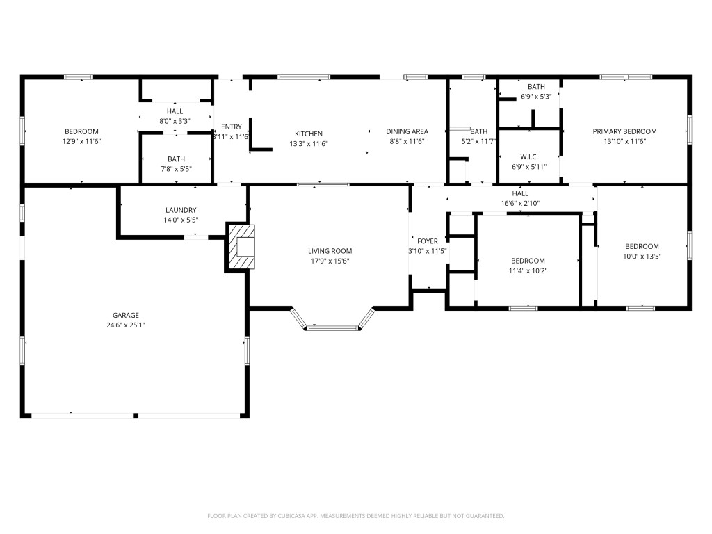
Tract 1: Beautiful 15-acre property featuring a custom-built, updated 4-bedroom, 3 bath home (1,688 sq ft, built in 1975) with a 2-car garage. Enjoy a scenic setting complete with a large pond and barn—perfect for livestock, recreation, or simply taking in the peaceful country views. This property offers the space and setting to make it exactly what you want it to be.
Tract 2: 17 ½ Acres Pasture w/ pond.
Tract 3: 17 ½ Acres Pasture
TERMS: 10% down day of sale, non refundable, close in 30 days. No buyer contingencies, 5% Buyers Premium, no reserve, absolute auction!
OPEN HOUSES: Monday, May 11 & 18 from 4 – 6 PM
— THE CHUPP TEAM —
DALE – MARIA – JUSTIN
Coldwell Banker Select (918) 630-0495 or (918) 640-5024